SnapRealty.ca
Back
ID: 64207
MLS ID: 24590545
MLS Nubmer: 907591
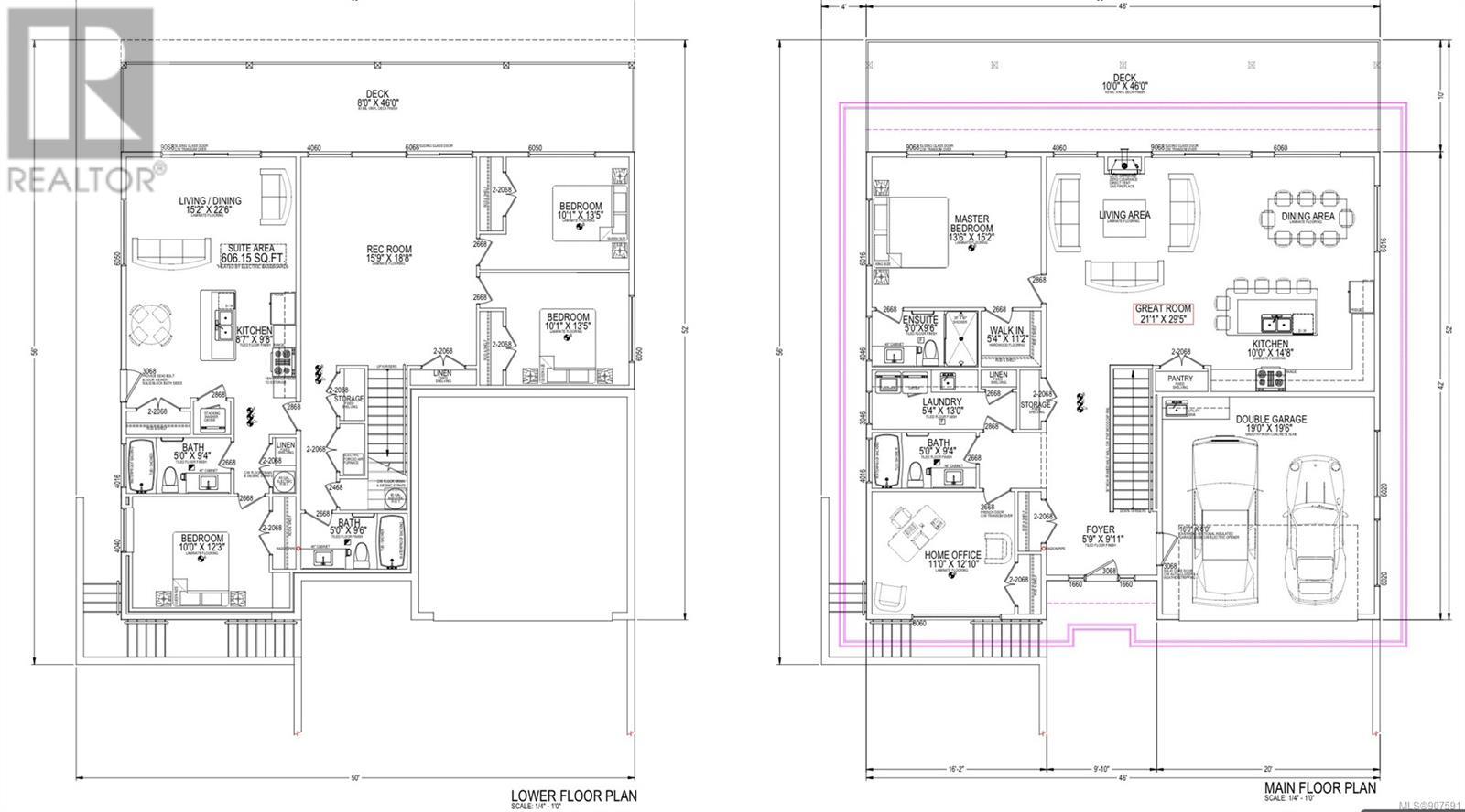
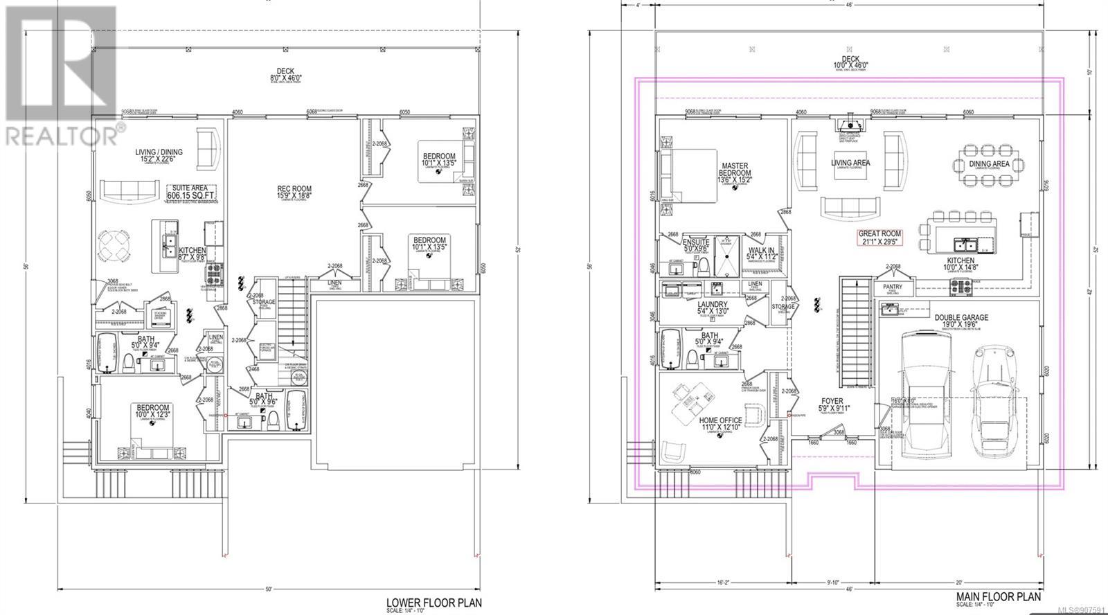
description: Welcome to 42 Savoy Rd, Lake Cowichan, BC Situated on a quiet road in the beautiful community of Lake Cowichan, you’ll find this rare opportunity. This new construction home is situated in an established neighborhood in the center of town. Immediate proximity to schools, shopping, and transit. The home features 4 bedrooms, 3 bathrooms, with a family room and 2 level deck. In addition, there's a 1 bedroom legal suite with its own private deck space is also included. You’ll enjoy a high level of finishing's throughout, with hardwood and tile floors in the main home, and offering a heat pump in both spaces (forced air in the main home & ceiling cassette in the suite). Incredible mountainous and valley views compliment every room in this home. The upper and lower decks span the length of the home, capitalizing on these incredible views! Don’t miss it!
address: 42 Savoy Rd
postal code: V0R2G0
city: Lake Cowichan
latitude: 48.82941294
longitude: -124.05656809
constructed_date: 2022
type: House
sub_type: Single Family
size_interior: 2970 sqft
size_total: 12316 sqft
bedrooms: 5
bathrooms: 4
heating_type: Heat Pump
cooling_type: Air Conditioned, Central air conditioning, Wall un
view_type: Mountain view
features: Central location, Private setting, Southern exposure, Wooded area, Sloping, Other, Rectangular, Marine Oriented