| ID: | 63451 |
|---|---|
| MLS ID: | 24584917 |
| MLS Nubmer: | R2703418 |
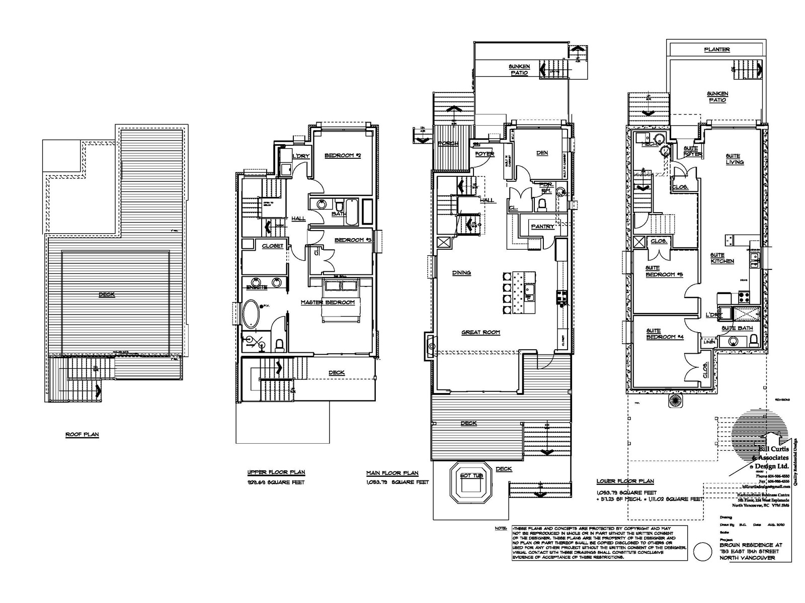
| description: | Rarely available 33' x 167' level, south-facing Grand Boulevard lot on one of the finest streets with lane access and beautiful mountain views. Walking distance to Elementary School, High School, Sports Fields and Parks. Included is a "Ready to Start Building" three level, custom 3,000 square foot family home with three bedrooms upstairs and a two bedroom basement suite. Plus, perfect for this deep lot, is a three level 1200 square foot laneway house. Call for details. |
| address: | 753 E 15TH STREET |
| postal code: | V7L2S5 |
| city: | North Vancouver |
| latitude: | 49.32198200 |
| longitude: | -123.05248300 |
| constructed_date: | 2020 |
| type: | House |
| sub_type: | Single Family |
| size_interior: | 4275 sqft |
| size_total: | 5511 sqft |
| architectural_style: | 2 Level |
| construction_style_attachment: | Detached |
| bedrooms: | 5 |
| bathrooms: | 6 |
| fireplace_total: | 1 |
| basement_type: | Full (Unknown) |
| features: | Central location |
| amenities_near_by: | Golf Course, Recreation, Shopping, Ski hill |