SnapRealty.ca
Back
ID: 60988
MLS ID: 24567671
MLS Nubmer: R2701834
description: Welcome to this picturesque, bright & sunny SUITEABLE Mid Century Modern gem situated in the heart of The Heights in New Westminster. Renovated in 2020, this bungalow with level entry to the front door and expansive basement has a SOUTH-facing backyard drenching the entire home w/light. The spacious living/dining area opens up to a massive & partially covered NEW covered deck & backyard/patio showcasing a lovely tree view and landscaping. The lower floor is fully finished & has its own separate entrance for SUITE + ample space for a simple kitchen reno. Upgrades to new exterior drainage + retaining wall, new doors + Centra windows, new gas fireplaces, new lighting, paint, curtains and select appliances. Open July 9 from 1 - 3 PM.
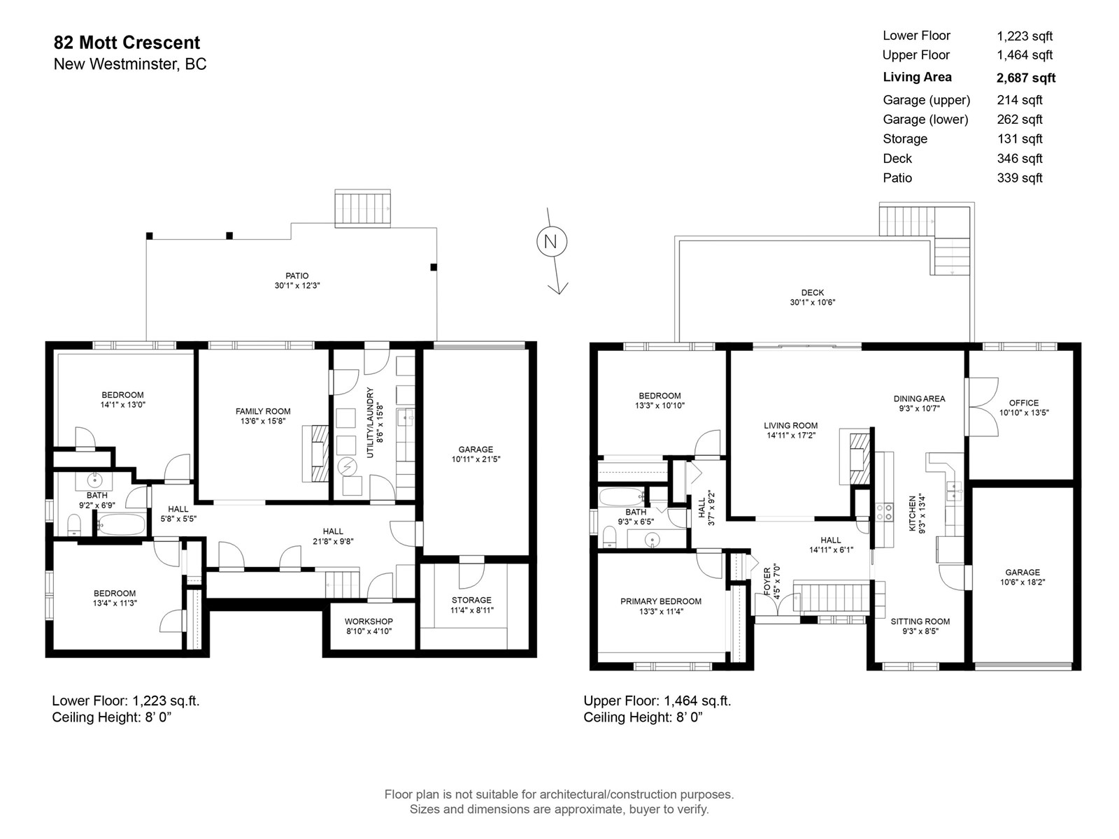
address: 82 MOTT CRESCENT
postal code: V3L4L9
city: New Westminster
latitude: 49.22448300
longitude: -122.91084400
constructed_date: 1964
type: House
sub_type: Single Family
size_interior: 2687 sqft
size_total: 6168 sqft
architectural_style: Bungalow
construction_style_attachment: Detached
bedrooms: 5
bathrooms: 2
fireplace_total: 2
basement_type: Unknown (Finished)
fixtures: Drapes/Window coverings
appliances: All
view_type: View
features: Central location
amenities_near_by: Recreation, Shopping