SnapRealty.ca
Back
ID: 60267
MLS ID: 24561436
MLS Nubmer: 902786
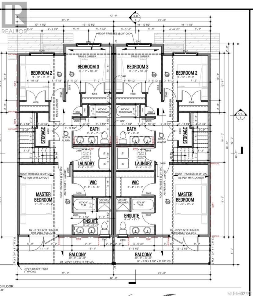
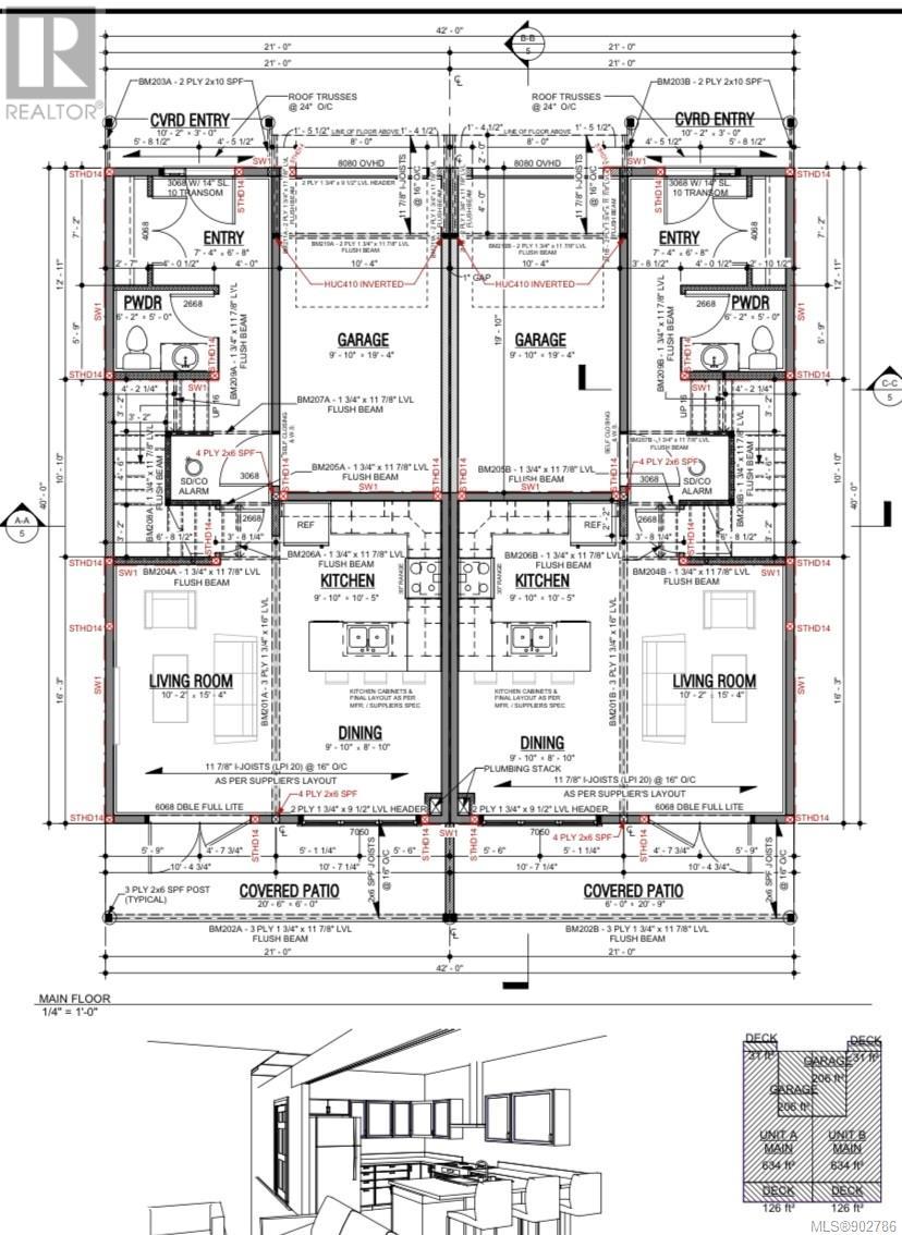
description: This 3 bedroom, 3 bathroom spacious 1/2 duplex is what you have been waiting for! 1400+ square foot home is newly built in May 2022 =Brand New & NO GST! This bright spacious home includes large kitchen with ample storage, open concept living - dining room, gas fireplace to enjoy in the living room with glass doors out on to the fully fenced sunny backyard patio. Upstairs includes a large primary bedroom with a spacious 5 piece ensuite, walk in closet and 2 additional bedrooms, full bathroom and separate laundry room with storage. Walking distance to schools, ball park, 3 par golf, pickleball, and centrally located near Seaparc & Town Centre. Come check out this stunning home that has been built with love and care!
address: 2153 Banford Pl
postal code: V9Z0W6
city: Sooke
latitude: 48.38378490
longitude: -123.71757920
constructed_date: 2022
type: Duplex
sub_type: Single Family
size_interior: 1794 sqft
size_total: 8624 sqft
bedrooms: 3
bathrooms: 3
fireplace_total: 1
heating_type: Baseboard heaters, (Electric), (Natural gas)
cooling_type: None
features: Cul-de-sac, Other
community_features: Pets Allowed, Family Oriented