SnapRealty.ca
Back
ID: 60201
MLS ID: 24560300
MLS Nubmer: R2701330
description: Gorgeous front deck unit in a wonderful park. Quick to shops, schools and skiing. Modern color scheme professionally designed for 2022. Large oval tub, plenty of closet space and a full kitchen package upgrade makes for comfortable living. Built by Triple M Housing, this Green Home has a 20 year structural warranty. Hard to find a unit at this price not requiring expensive renovations. Just move in with the peace of mind that everything here is brand new. Plus save once you move in as this unit is 30% more energy efficient! Units by this developer move fast, don't wait!
address: 11A 7170 HART HIGHWAY
postal code: V2K3A8
city: Prince George
latitude: 53.99485461
longitude: -122.79549735
constructed_date: 2022
type: Manufactured Home/Mobile
sub_type: Single Family
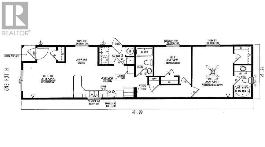
size_interior: 1056 sqft
size_total: 0 x
construction_style_attachment: Detached
bedrooms: 2
bathrooms: 2
storeys: 1
basement_type: None
parking_type: Other