SnapRealty.ca
Back
ID: 55950
MLS ID: 24528155
MLS Nubmer: 10255689
description: Great location in lower Easthill with an opportunity to own this up and down, non conforming duplex. Live in one unit and rent the other out. Each unit has 2 beds, 1 bath & their own laundry. The unit have their own private yard space, upper unit enjoys the front and lower unit looks after the backyard. The units are on their own separate hydro meters. Walk to the many amenities and services of downtown Vernon, close to the bus route too. Baseboard Heaters replaced in the last 4 years, deck for upper unit replaced in 2018. Landscaping of back area includes an inviting oasis with an outside bar area. Lots of parking for cars and RV's.
address: 3208 Pleasant Valley Road
postal code: V1T4L5
city: Vernon
latitude: 50.26611200
longitude: -119.26249500
constructed_date: 1962
type: Duplex
sub_type: Single Family
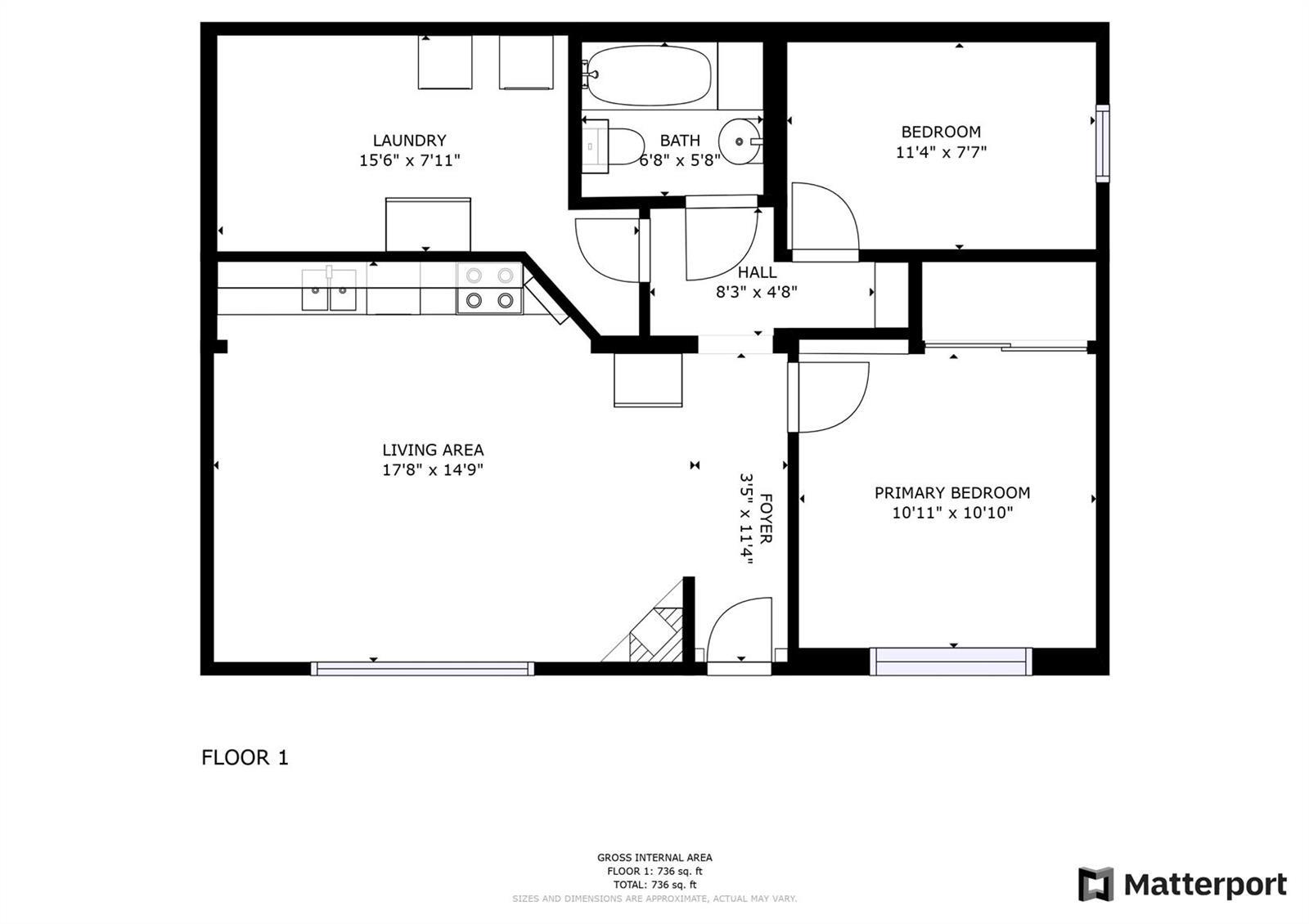
size_interior: 1524 sqft
size_total: 0.13 ac|under 1 acre
architectural_style: Ranch
bedrooms: 4
bathrooms: 2
heating_type: (Electric)
cooling_type: Wall unit
storeys: 1
basement_type: Full (Finished)
view_type: City view
features: Balcony