SnapRealty.ca
Back
ID: 55268
MLS ID: 24522194
MLS Nubmer: R2698327
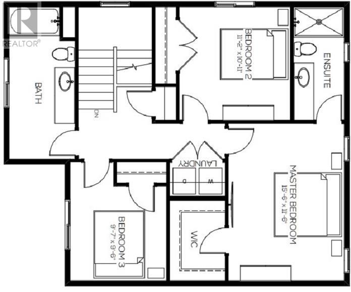
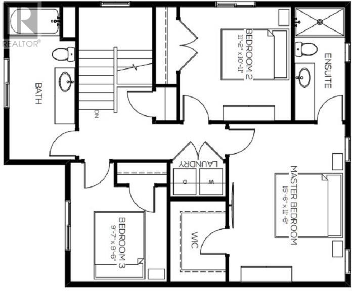
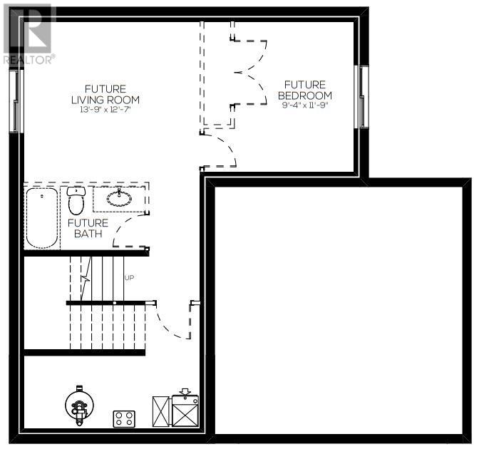
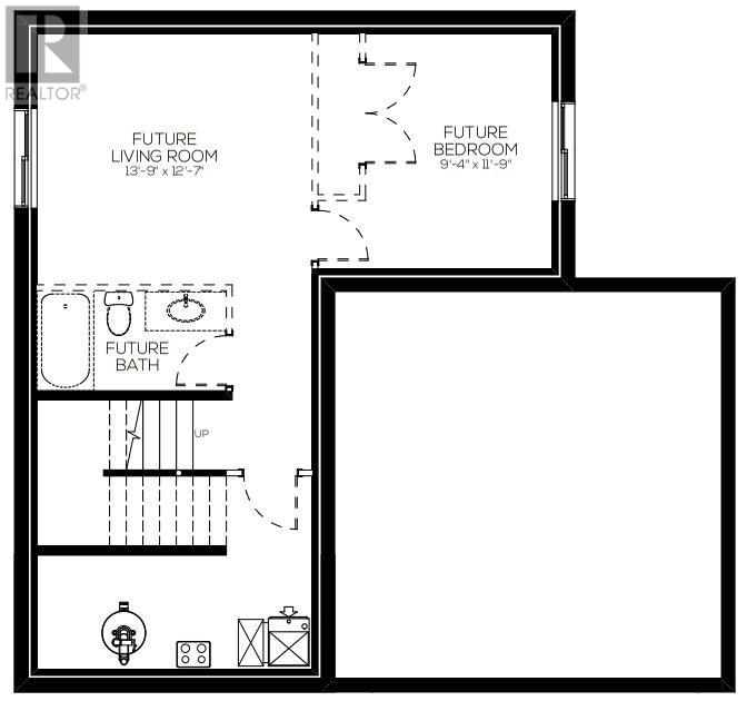
description: Built on a quiet, newly developed street, close to schools, French Immersion, daycare, parks, and walking trails. Enjoy this spacious, open concept home which includes an unfinished basement with rough ins perfect for future bedrooms or income! The main floor has a large open concept featuring a great room, kitchen and nook that will quickly become the heart of your home. The second floor boasts a grand master suite, which includes a large walk-in closet, carpeted floors and its own ensuite. There are two more bedrooms, a large main bathroom and convenient second floor laundry. Don't miss out on this home!
address: 3804 WIRTL STREET
postal code: V8G0K7
city: Terrace
latitude: 54.52890818
longitude: -128.61644451
constructed_date: 2022
type: House
sub_type: Single Family
size_interior: 1528 sqft
size_total: 8679 sqft
construction_style_attachment: Detached
bedrooms: 3
bathrooms: 3
storeys: 3
basement_type: Unknown (Unfinished)
parking_type: Garage