SnapRealty.ca
Back
ID: 53182
MLS ID: 24506882
MLS Nubmer: 2465392
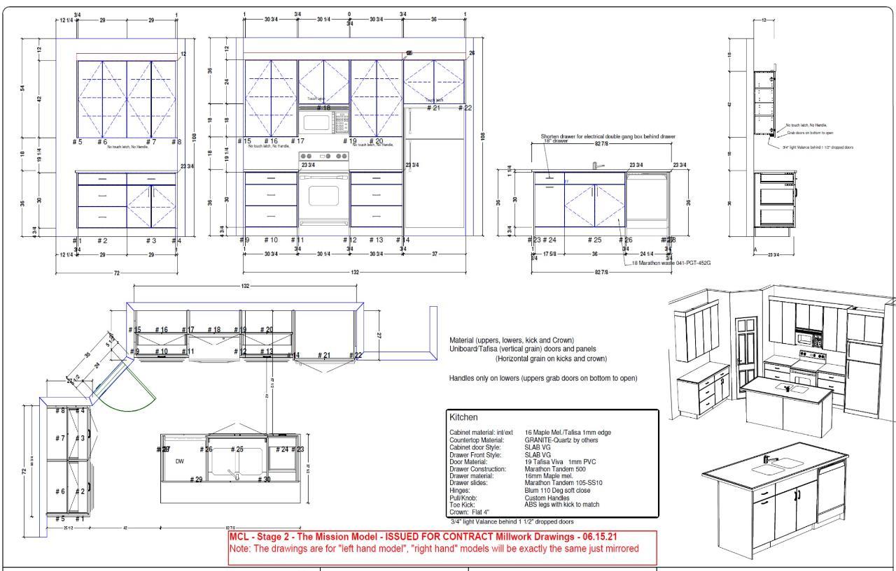
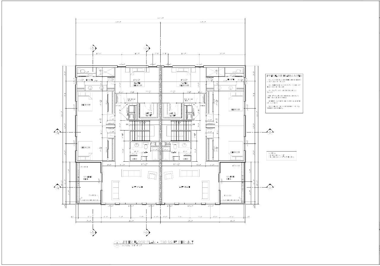
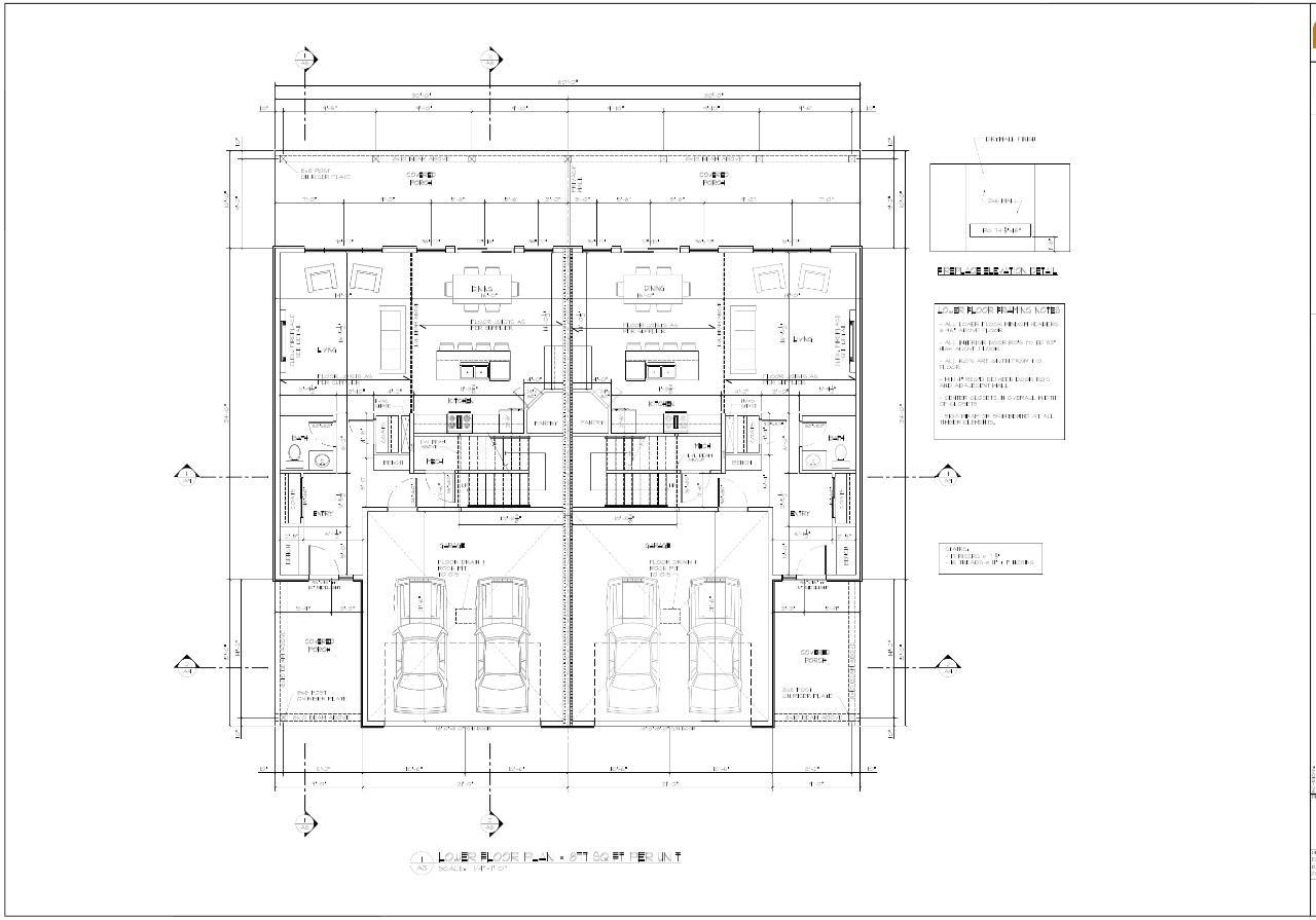
description: These new 1/2 duplexes to be built by Tyee are located in the new Mark Creek Landing. The quality of construction speaks for itself, nothing is left to think of. Picture yourself cooking in the beautiful kitchen or barbecuing on the covered deck, this setting is very inviting, you won't be disappointed! The home features you main living space on the walk in level with a foyer, kitchen, dining & living as well as a 2 piece bath and access into the double garage. The upper floor features 3 bedrooms, two full baths (one of which is a private ensuite) and a loft / family space. Easy access to walking trails and rails to trails , what more could you ask for? How about energy efficiency, these homes are constructed to Built Green Platinum specifications. Mark Creek Landing is a new zero-maintenance development. Landscaping, irrigation and other maintenance are all taken care of within the strata. This is a bare land strata and the budgeted strata fees are $148.50/mo. Call your REALTOR(R) now as there are a limited number available and you don't want to miss out. * Price subject to change due to fluctuations in lumber prices. Estimated completion date late spring or summer 2023.
address: SL8 HUCKLEBERRY LANE
postal code: V1A3A3
city: Kimberley
latitude: 49.66499096
longitude: -115.97018866
constructed_date: 2022
type: House
sub_type: Single Family
size_interior: 2107 sqft
bedrooms: 3
bathrooms: 3
heating_type: In Floor Heating, (Natural gas)
basement_type: Unknown (Unknown)
utility_type: Sewer (Available)