SnapRealty.ca
Back
ID: 52610
MLS ID: 24502730
MLS Nubmer: R2696577
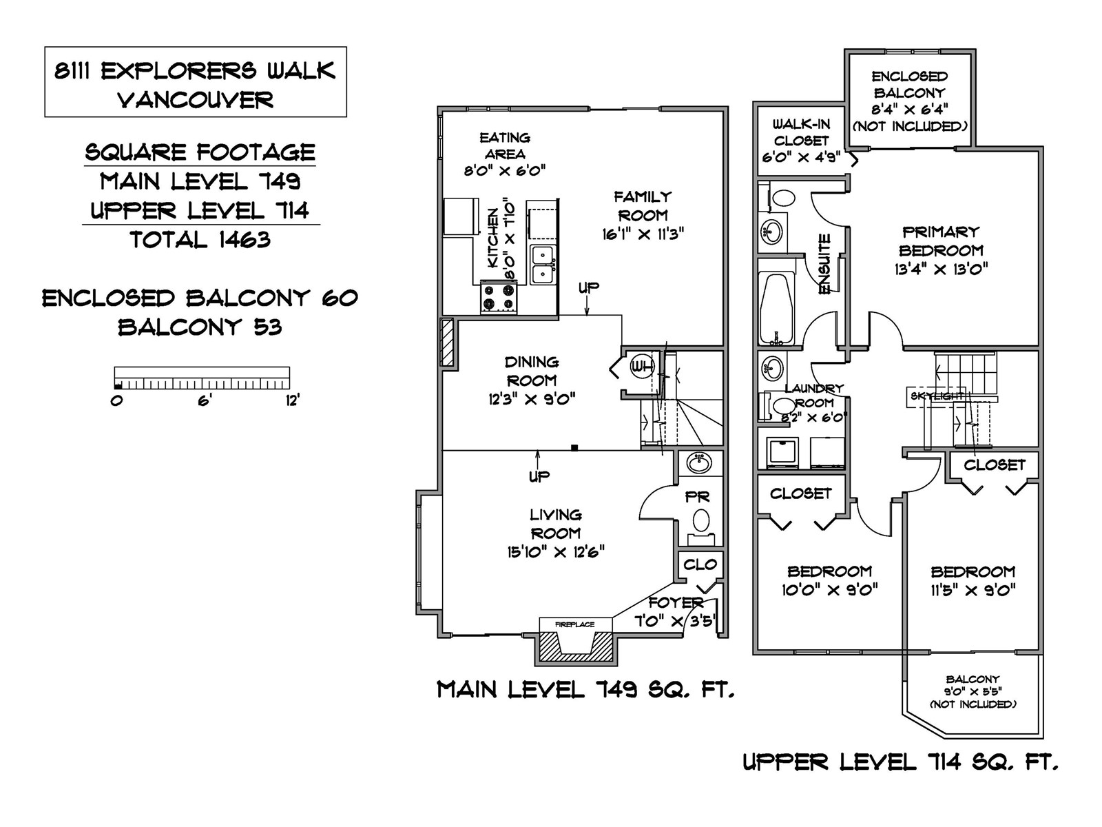
description: Bare Land Strata - COV prepaid lease until Feb 13, 2079. Spacious end unit townhouse across from walking trails. Covenient Champlain Heights location near elementary schools, bus, and Everett Crowley Park. Needs total renovation - Great opportunity to live in Vancouver and make your own design choices. All measurements approx - Fab Floor Plans. Showings through Buyer's agent please.... Open house Sunday 11:30-1:30pm July 17, 2022 by appointment only. Also offers emailed in one PDF Wednesday July 20, 2022 by 1pm
address: 8111 EXPLORERS WALK
postal code: V5S4A9
city: Vancouver
latitude: 49.21167200
longitude: -123.02926500
constructed_date: 1980
type: Row / Townhouse
sub_type: Single Family
size_interior: 1463 sqft
architectural_style: 2 Level
bedrooms: 3
bathrooms: 3
appliances: Refrigerator, Stove
amenities: Laundry - In Suite
view_type: View
features: Central location
amenities_near_by: Shopping