SnapRealty.ca
Back
ID: 52275
MLS ID: 24499490
MLS Nubmer: 905420
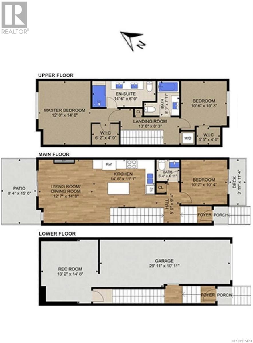
description: Stunning Westcoast contemporary 3 bedroom 3 bath townhome. Built in 2017 with updates including a great paint scheme, privacy blinds and an additional rec room added in the basement. Open concept living dining gives the space a bright, cheerful and open feel. 3 good size bedrooms, 3 bathrooms, and the additional rec room/office in the basement. Modern kitchen cabinets with quartz counter tops, an electric fireplace, vaulted ceilings, heated floors in the ensuite, and so much more. The triple pane windows along the front keep the sound out, and the heat in. Thetis Lake is just a short 1km walk away. Shopping centres are close by including Costco. This complex is kid friendly, rental friendly and pet friendly.
address: 113 300 Phelps Ave
postal code: V9B6L3
city: Langford
latitude: 48.46383897
longitude: -123.48509155
constructed_date: 2017
type: Row / Townhouse
sub_type: Single Family
size_interior: 1770 sqft
size_total: 871 sqft
bedrooms: 3
bathrooms: 3
fireplace_total: 1
heating_type: Baseboard heaters, (Electric)
cooling_type: None
structure: Patio(s)
view_type: Valley view
features: Rectangular
community_features: Pets Allowed, Family Oriented