SnapRealty.ca
Back
ID: 51632
MLS ID: 24493764
MLS Nubmer: 905300
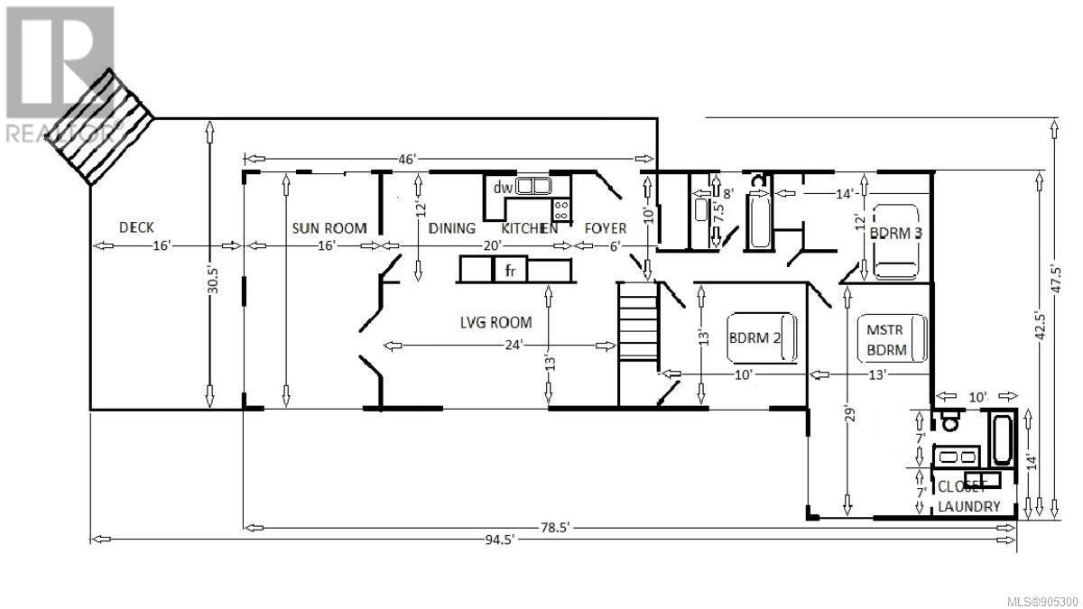
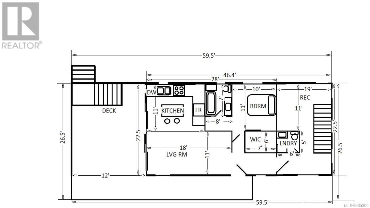
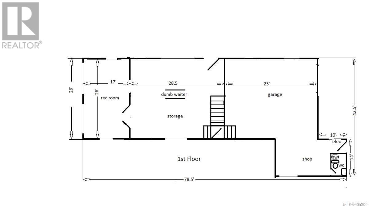
description: For more information, please click the Brochure button below. Excellent water and mountain views. Beach area. 2 Legal residences, 2 separate addresses, 1.08 acres. House One 4873 Brenton-Page Rd , 3856 sq ft, House Two, 4875 Brenton-Page Rd. 2070 sq ft recently renovated, property dimension are 100'x 400' plus 100'x40' waterfront on Ladysmith harbor. Quiet well established neighborhood, Large level lot, New 200 amp panels and wiring, lots of storage and shop areas. New septic, Newer foundations 2020, walking distance to Raven Point Marina, 15 mins to airport and ferries. CCTV Security, 8kw generator. Newer appliances still under warranty.
address: 4873/4875 Brenton Page Rd S
postal code: V9G1J6
city: Ladysmith
latitude: 49.01605548
longitude: -123.82983710
constructed_date: 1980
type: House
sub_type: Single Family
size_interior: 4900 sqft
size_total: 1.08 ac
architectural_style: Contemporary
bedrooms: 4
bathrooms: 4
fireplace_total: 1
heating_type: Baseboard heaters, (Wood)
cooling_type: None
structure: Greenhouse, Shed
view_type: Mountain view, Valley view
features: Wooded area, Sloping, Other, Marine Oriented