| ID: | 47516 |
|---|---|
| MLS ID: | 24461629 |
| MLS Nubmer: | 902848 |
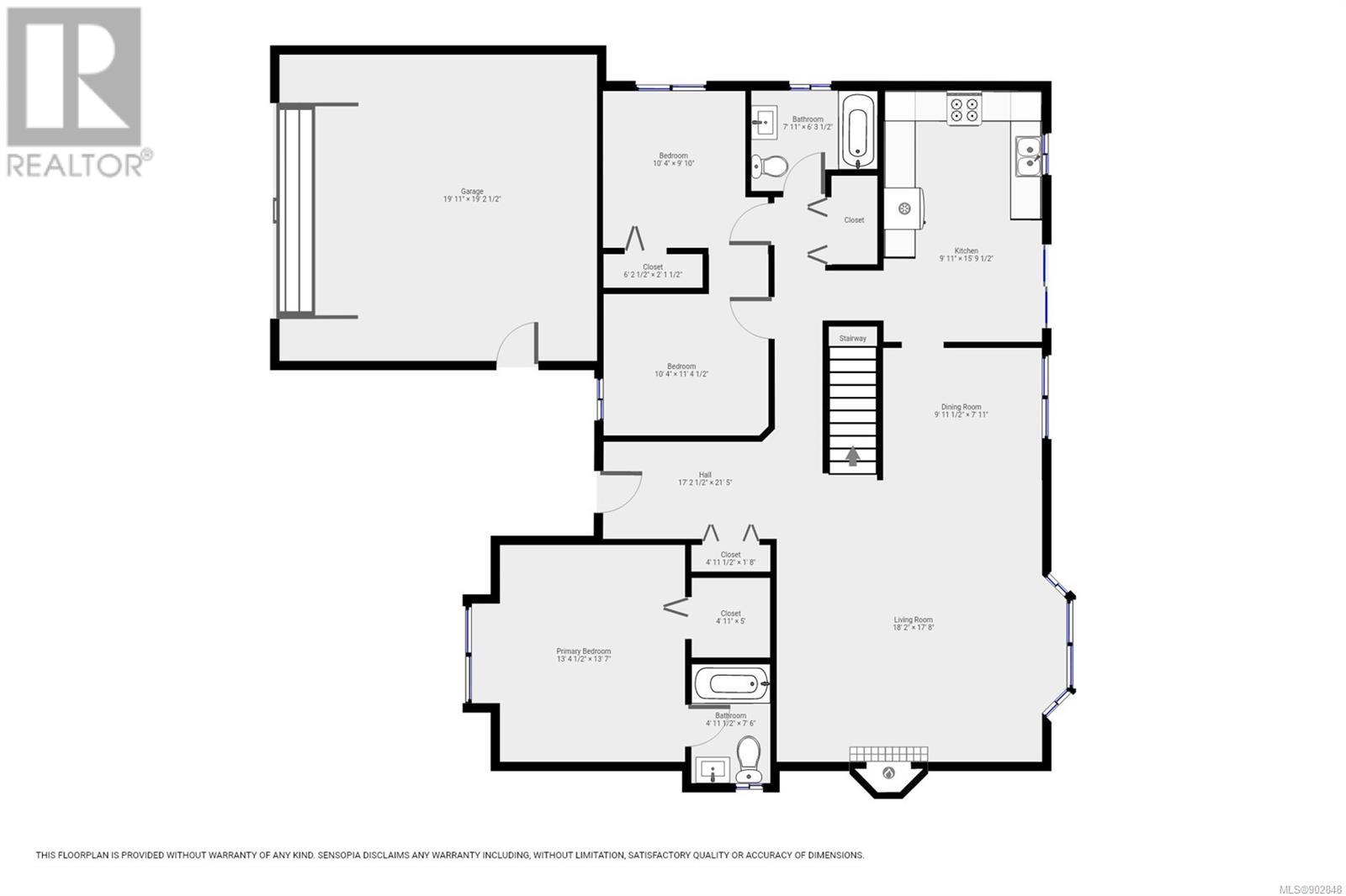
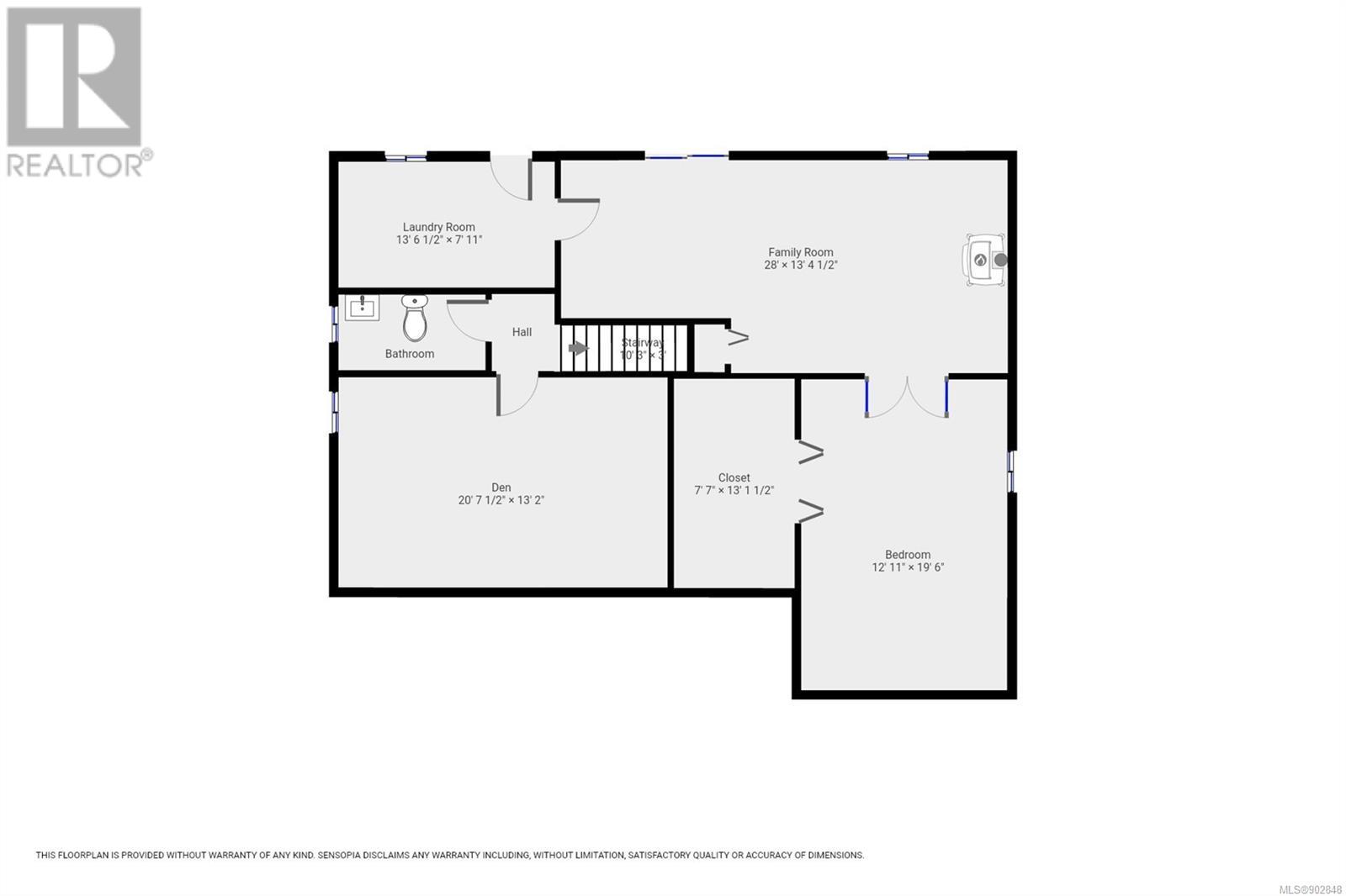
| description: | Large level entry home with walkout basement in desirable Georgia Park in Willow Point. Sprawling over 2600 sqft this home features peak a boo ocean views, 4 bedrooms + den, and 3 bathrooms while living like a rancher. The main floor showcases oak hardwood floors, vaulted ceilings and large open concept living & dining areas. Kitchen features solid wood maple cabinets & access to back deck for entertaining. Also on the main is the spacious master suite with walk in closet and full 4-piece ensuite, 2 more sizeable bedrooms, another full bathroom. Downstairs features a large family room with cozy gas fireplace, 4th bedroom with walk in closet, den, and laundry room. Separate outside entrance allows for easy in-law suite potential. Outside features a large covered patio, low maintenance and private fenced yard. Large double garage for extra storage. Located walking distance to all level of schools, walking trails, and short drive to local shopping amenities. |
| address: | 805 Georgia Dr |
| postal code: | V9W1S3 |
| city: | Campbell River |
| latitude: | 49.96599670 |
| longitude: | -125.23572348 |
| constructed_date: | 1989 |
| type: | House |
| sub_type: | Single Family |
| size_interior: | 3041 sqft |
| size_total: | 7405 sqft |
| bedrooms: | 4 |
| bathrooms: | 3 |
| fireplace_total: | 2 |
| heating_type: | Baseboard heaters, (Electric) |
| cooling_type: | None |
| appliances: | Refrigerator, Stove, Washer, Dryer |
| view_type: | Mountain view, Ocean view |
| features: | Central location, Hillside, Southern exposure, Other, Rectangular |