SnapRealty.ca
Back
ID: 47465
MLS ID: 24459877
MLS Nubmer: 904544
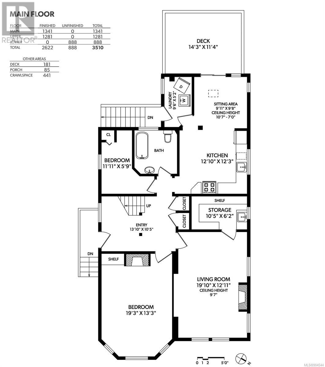
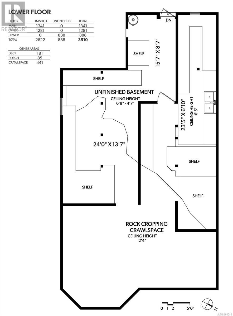
description: WHAT A GREAT OPPORTUNITY TO OWN A CHARACTER CONVERSION TRI-PLEX ON A QUIET LANE JUST MINS. FROM DOWNTOWN BUT STILL IN ROCKLAND! A perfect chance to live in the very large bright main level suite & earn income from the two 1 bdrm suites up, or rent the entire property for revenue. The interior finish on the main lvl boasts period architectural details, w/ 2 bdrms, 1 4-pc. bath, a sunny kitchen w/sitting area & a large sunset deck off of it. Also included is a loft sunroom for a funky studio area. The 2nd level has 2 one bdrm suites that are bright & sunny as well with views of the city. Enjoy the fenced-in quiet back garden for summertime fun. There are 3 on-site parking spaces, plenty of dry basement storage & workshop + laundry facilities on the main flr, w/separate entrance. The wiring has been upgraded to 200 amp. & the heat is a hot water boiler. One suite is vacant with two suites tenanted. Safe, walkable area. Great location for shopping, parks, schools & bus routes. A MUST SEE!
address: 1022 Carberry Gdns
postal code: V8S3R7
city: Victoria
latitude: 48.42370127
longitude: -123.34262038
constructed_date: 1910
type: Triplex
sub_type: Single Family
size_interior: 3510 sqft
size_total: 6840 sqft
architectural_style: Character, Other
bedrooms: 4
bathrooms: 3
fireplace_total: 3
heating_type: Hot Water, (Natural gas)
cooling_type: None
parking_type: Stall
parking_space_total: 3
appliances: Refrigerator, Stove, Washer, Dryer
features: Central location, Level lot, Private setting, Other, Rectangular