| ID: | 43844 |
|---|---|
| MLS ID: | 24433798 |
| MLS Nubmer: | 10252217 |
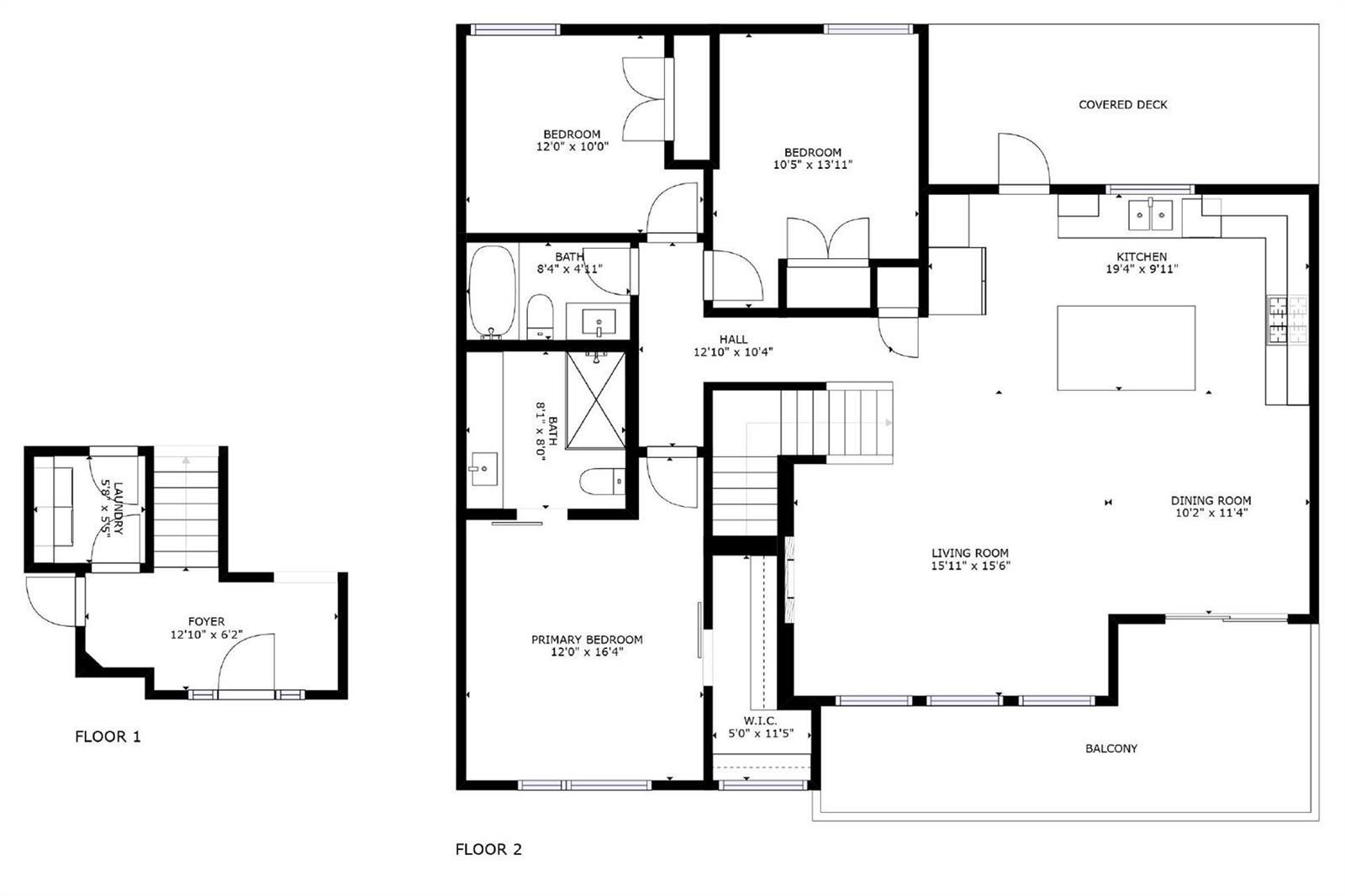
| description: | Custom 5 bedroom, 3 bathroom home in desirable Tallus Ridge now available with 3 bedrooms upstairs and 4th bedroom or den down. Wide plank hardwood throughout main floor with tile in the bathrooms and carpet in the bedrooms. Modern style home with open floor plan with tons of natural lighting great for entertaining. Spacious master bedroom with walk-in closet and 4 piece ensuite complete with His & Her sinks. Large island kitchen with gorgeous pristine counter tops, stainless appliance package including a professional series gas range and wall oven with microwave combination. Plenty of cabinet space and access to the rear deck ideal for bbq season. One bedroom LEGAL suite downstairs as a mortgage helper or for your extended family. |
| address: | 2604 Paramount Drive |
| postal code: | V4T3M6 |
| city: | West Kelowna |
| latitude: | 49.86190600 |
| longitude: | -119.62446600 |
| constructed_date: | 2017 |
| type: | House |
| sub_type: | Single Family |
| size_interior: | 2168 sqft |
| size_total: | 0.156 ac|under 1 acre |
| architectural_style: | Ground level entry |
| bedrooms: | 4 |
| bathrooms: | 2 |
| heating_type: | Forced air, (Electric), (Natural gas) |
| cooling_type: | Central air conditioning |
| basement_type: | Full (Partially finished) |
| parking_type: | Attached Garage (2) |
| parking_space_total: | 4 |
| structure: | Patio(s), Sundeck |
| landscape_features: | Underground sprinkler, Fully landscaped |
| appliances: | Dryer - Electric, Refrigerator, Washer, Range - Electric, Gas stove(s), Dishwasher, Microwave |
| view_type: | Mountain view |
| features: | Balcony |
| community_features: | Family Oriented |
| amenities_near_by: | Shopping, Schools, Park, Public Transit |