| ID: | 40686 |
|---|---|
| MLS ID: | 24411421 |
| MLS Nubmer: | 902556 |
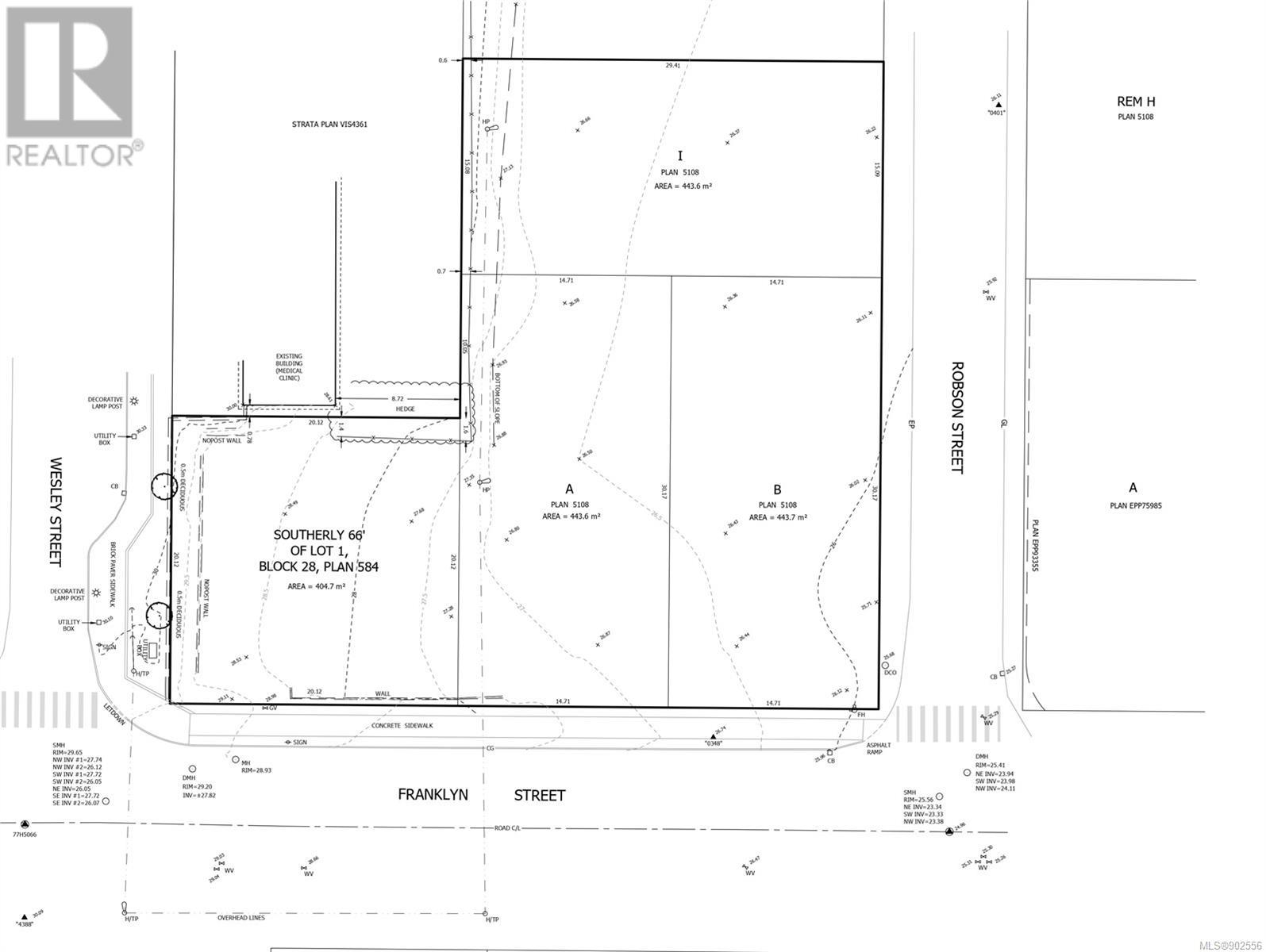
| description: | Very rare opportunity to acquire this unique development property in Nanaimo's central location. Steps away to city center and marina with beautiful surrounding views. Building Plan is 5 storey including 64 units and multiple commercial areas. This 18,686 sqft DT2 zoned property is eligible for 10 year tax exemption program which made this a great opportunity to invest. Addition information regarding building plan is available. |
| address: | 398/350 Franklyn St |
| postal code: | V9R2X5 |
| city: | Nanaimo |
| latitude: | 49.16414171 |
| longitude: | -123.93964476 |
| sub_type: | Vacant Land |
| size_total: | 18686 sqft |
| view_type: | City view, Ocean view |
| features: | Central location, Corner Site, Irregular lot size, Other, Marine Oriented |