| ID: | 37814 |
|---|---|
| MLS ID: | 24388135 |
| MLS Nubmer: | 901938 |
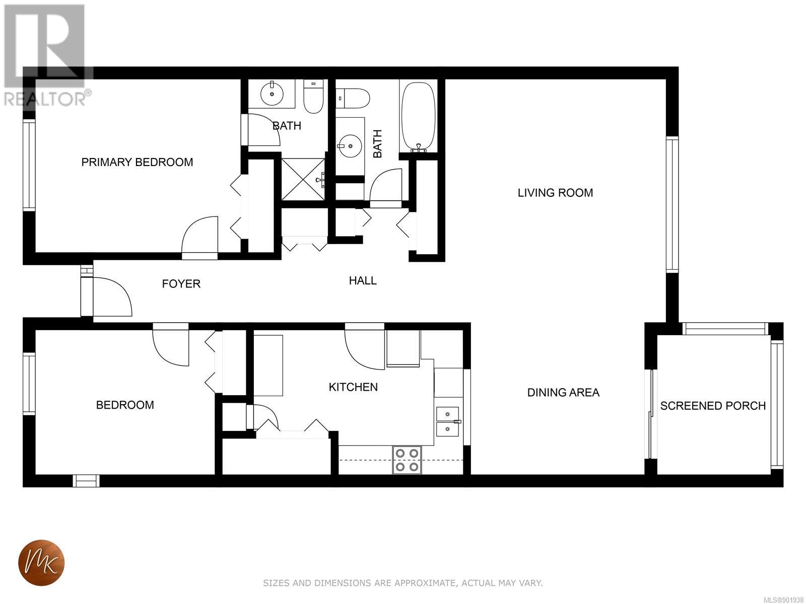
| description: | Spectacular top floor waterfront unit!! 180* views of Discovery Passage, Fishing Pier and the Coastal Mountain Range. The breathtaking views can be enjoyed from living, kitchen, dining & enclosed patio/sun room. This condo has 2 bedrooms with the master bedroom featuring a 3 piece ensuite. The building is very quiet, well taken care of and walking distance to all amenities of downtown. Unit comes with its own parking space & storage locker. Wheelchair accessible. One cat, 45+, cannot be rental. |
| address: | 14 523 Island Hwy |
| postal code: | V9W2B9 |
| city: | Campbell River |
| latitude: | 50.01709710 |
| longitude: | -125.23580891 |
| constructed_date: | 1976 |
| type: | Apartment |
| sub_type: | Single Family |
| size_interior: | 1276 sqft |
| size_total: | 1276 sqft |
| bedrooms: | 2 |
| bathrooms: | 2 |
| heating_type: | Baseboard heaters, (Electric) |
| cooling_type: | See Remarks |
| view_type: | Mountain view, Ocean view |
| features: | Central location, Other, Marine Oriented |
| community_features: | Pets Allowed With Restrictions, Age Restrictions |