SnapRealty.ca
Back
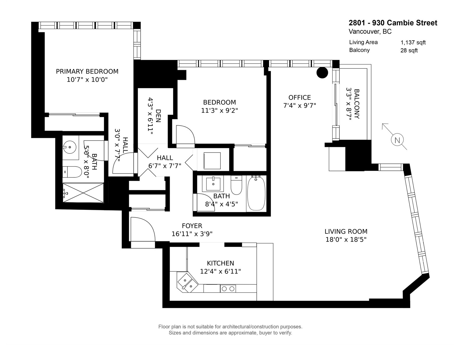
ID: 37284
MLS ID: 24383694
MLS Nubmer: R2687112
description: Updated sub-penthouse with fantastic views and patio! This home is a spacious 1,137 sqft northeast corner suite with true floor-to-ceiling windows. Excellent layout with large principal rooms, and ample separation between the living spaces and the bedrooms. The kitchen is mostly open and features plenty of counter space, granite countertops, and custom cabinetry. The home also offers great storage space with the den/in-suite storage room. This residence is one of the very few in the complex with a patio - this one boasting beautiful south views, including the stadium. ?Pacific Landmark? offers excellent amenities including a large indoor pool and gym. 1 parking stall is included and rentals are welcome. Note: this is a no-pets building.
address: 2801 930 CAMBIE STREET
postal code: V6B5X6
city: Vancouver
latitude: 49.27703300
longitude: -123.11655200
constructed_date: 1994
type: Apartment
sub_type: Single Family
size_interior: 1137 sqft
bedrooms: 2
bathrooms: 2
pool_type: Indoor pool
landscape_features: Garden Area
amenities: Exercise Centre, Laundry - In Suite