SnapRealty.ca
Back
ID: 36701
MLS ID: 24381530
MLS Nubmer: R2686741
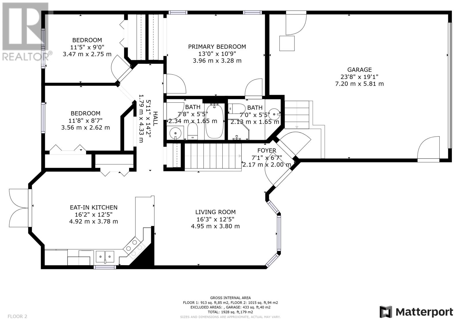
description: * PREC - Personal Real Estate Corporation. Great opportunity to own this 5 bed, 2.5 bath home situated in a central location near the new Anne Roberts Young Elementary & hospital. The main floor is complete w/oversized windows, open-concept living & a spacious eat-in kitchen w/ excellent quality cabinetry, SS appliances & large floor-to-ceiling windows. The master retreat w/3 pc ensuite, 2 other generously sized bedrooms & 4 pc bath. In need of a summer project? The partially finished bsmt is waiting for your personal touches; turn it into an ideal guest/family space. The fully fenced back yard is perfect for the kids to play & the sun deck is great for those summer BBQ’s. Completing this home is an attached double garage for all the toys. With some creativity, this home can be finished to its full potential. Sold as is, where is.
address: 8908 112 AVENUE
postal code: V1J0J1
city: Fort St. John
latitude: 56.25776034
longitude: -120.82703817
constructed_date: 2012
type: House
sub_type: Single Family
size_interior: 1928 sqft
size_total: 6341 sqft
construction_style_attachment: Detached
bedrooms: 5
bathrooms: 3
heating_type: Forced air (Natural gas)
storeys: 2
basement_type: Full (Partially finished)
parking_type: Garage
appliances: Washer, Dryer, Refrigerator, Stove, Dishwasher