SnapRealty.ca
Back
ID: 35250
MLS ID: 24369369
MLS Nubmer: 10252005
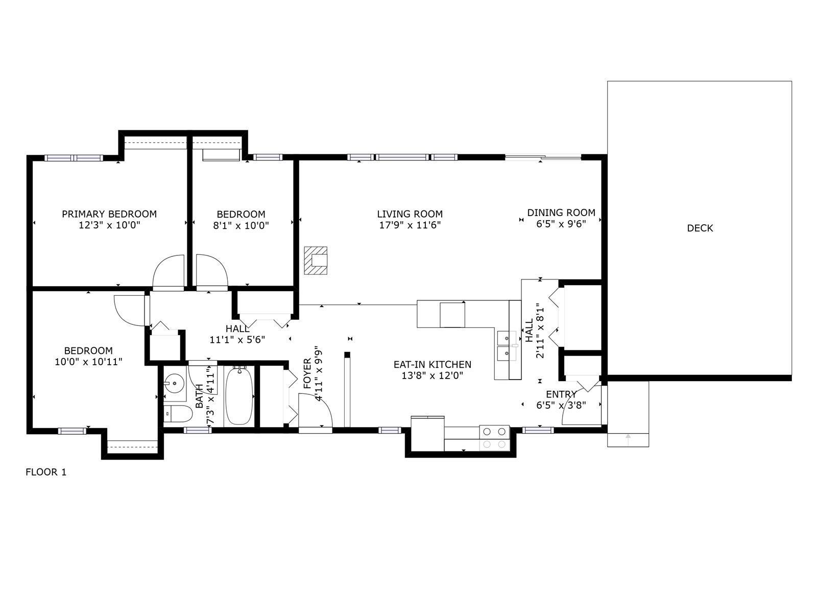
description: This fantastic little 3 bedroom house on nearly a quarter acre is waiting for you to call it your next home or investment property! Some of the features and upgrades you will find here are: One level home; 3 bedrooms; Open concept living-room/kitchen/dining area; Vaulted ceilings; Hardwood floors; Oversized single car garage with loads of extra parking; Located on a quiet street with the house set far back from the road; Very private and fenced rear yard; Hot-tub; Walking distance to school, park, transit and only a short drive to downtown Westbank! VIRTUAL WALKTHROUGH: https://my.matterport.com/show/?m=e7xJeUT5eUe
address: 2927 McAllister Road
postal code: V4T1G8
city: West Kelowna
latitude: 49.84052000
longitude: -119.65731900
constructed_date: 1976
type: House
sub_type: Single Family
size_interior: 1060 sqft
size_total: 0.22 ac|under 1 acre
bedrooms: 3
bathrooms: 1
heating_type: Baseboard heaters, (Electric)
cooling_type: Wall unit
storeys: 1
basement_type: Crawl space (Unknown)
parking_type: Attached Garage (1)
parking_space_total: 6
structure: Patio(s), Deck