SnapRealty.ca
Back
ID: 30130
MLS ID: 24332149
MLS Nubmer: 901399
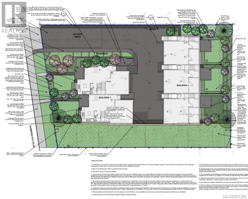
description: Approved development permit for a beautiful 5-unit townhouse project ready to go. The sellers have done all the heavy lifting of rezoning the site and getting the project through the extensive Development permitting stages and have passed council approvals. The project consists of a duplex and triplex with each unit having double garages, bike storage & roof top decks. The duplex units are to be 1883 sq ft 3 bed/4 baths units and each has open concept living and kitchens, main level entry with 3 bedrooms up and a rec room down w'powder room. The triplex units are to be 1545 sq ft w/ basement entry and main level on the second all open living/kitchen w/ a nice family room off the kitchen. The upper floors have the master suite w/ensuite, 2 more guest beds w/ 4 piece bathroom & access to roof top decks. Creative financing options are available to qualified buyers up to 65% of the purchase price. The file is DP 1229 at the City of Nanaimo and all information is available online or contact for access.
address: 4771 Hammond Bay Rd
postal code: V9T5A9
city: Nanaimo
latitude: 49.23135433
longitude: -123.98089902
constructed_date: 1990
type: House
sub_type: Single Family
size_interior: 2100 sqft
size_total: 15930 sqft
bedrooms: 4
bathrooms: 3
fireplace_total: 1
heating_type: Heat Pump, (Electric)
cooling_type: Central air conditioning
features: Other, Rectangular, Marine Oriented