SnapRealty.ca
Back
ID: 67827
MLS ID: 24620330
MLS Nubmer: 908401
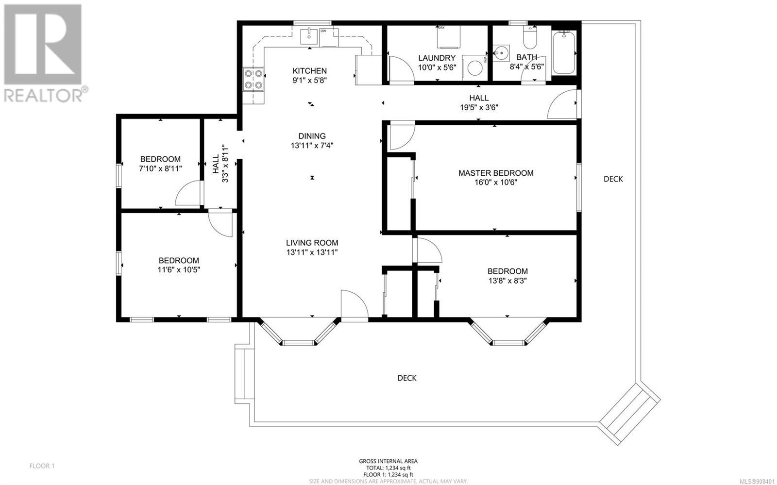
description: Quiet a serene Cresta Roca! Rarely do homes come to market on this no-thru road that is located next to Gabriola’s South end and Marinas. This sunny 5 acre property enjoys many, many fruit trees and a fenced in portion of yard that is perfect for little ones or pets. On the property you will find 3 Apple trees, 3 Plum, 2 Cherry, Walnut, Kiwi, Red and Yellow Gooseberry, Chery Plum and huckleberry! The home features many updates including a newer roof and updated interior. The home enjoys 4 bedrooms and a massive deck wraps around two sides of the home. Outside the home you will find plenty of storage within a few garden sheds and the well house. Come call beautiful Gabriola Island your new home! Gabriola is known as the isle of the arts and is accessed by 20 min ferry sailing from Nanaimo or a 15 min Seaplane access from YVR Airport South Terminal. Verify all measurements and data if important.
address: 1440 Cresta Roca Rd
postal code: V0R1X7
city: Gabriola Island
latitude: 49.15180483
longitude: -123.71905364
constructed_date: 1982
type: House
sub_type: Single Family
size_interior: 1234 sqft
size_total: 5 ac
architectural_style: Westcoast
bedrooms: 4
bathrooms: 1
heating_type: (Electric)
cooling_type: None
parking_type: Open
parking_space_total: 4
features: Acreage, Central location, Private setting, Southern exposure, Wooded area, Other, Marine Oriented