SnapRealty.ca
Back
ID: 65528
MLS ID: 24601211
MLS Nubmer: 10256777
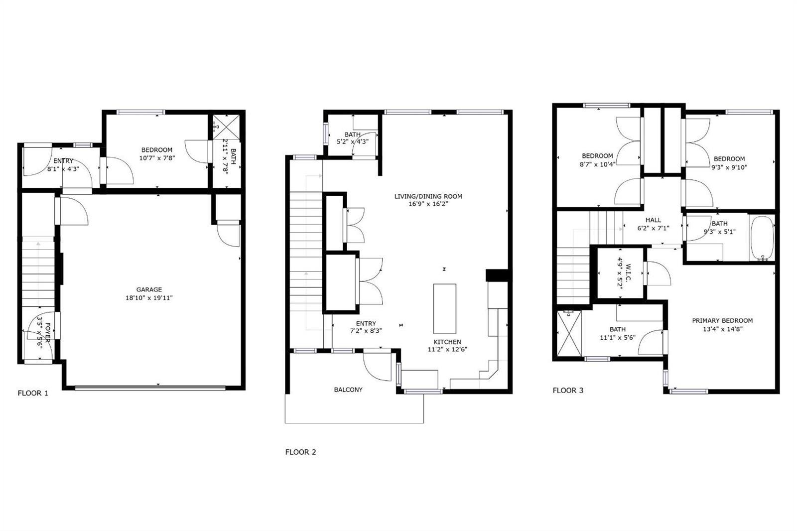
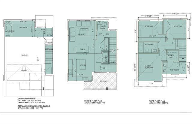
description: Location , Location, Location!! Spacious Townhouse in Rutland with 1500 sqft of living and a double garage (400 sqft) with an electric vehicle charging station. Main floor has a half bathroom, open living room, and kitchen with lots of windows for natural light. Top floor has master bedroom, with walk in closet and an ensuite, along with 2 more bedrooms and full bathroom. Not mention the bonus room/flex room with full bathroom with it's own side entry. Close to shopping, city bus routes, schools, UBC and many more amenities. Don't miss this opportunity, whether its an investment or a wonderful new family home. This unit comes with New Home Warranty and expected completion August 2022.
address: #8 1354 Rutland Road N
postal code: V1X4Z4
city: Kelowna
latitude: 49.90660600
longitude: -119.38732400
constructed_date: 2022
type: Row / Townhouse
sub_type: Single Family
size_interior: 1500 sqft
size_total: under 1 acre
bedrooms: 4
bathrooms: 4
heating_type: Forced air
cooling_type: Central air conditioning
parking_type: Attached Garage (2)
parking_space_total: 2