| ID: | 21258 |
|---|---|
| MLS ID: | 24270023 |
| MLS Nubmer: | 193692 |
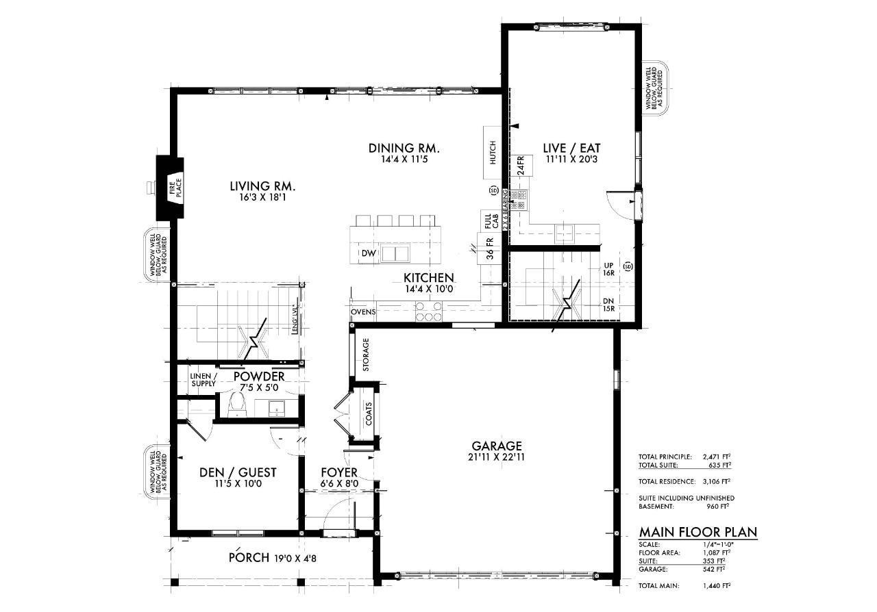
| description: | Brand new home with rental suite, currently under construction. Over 4,000 sqft with 8 bedrooms, 6 bathrooms and a full basement. Walk into the main floor where you will find the open concept living/kitchen area with gas fireplace and large windows plus den/office space and 2pc powder room. Upstairs you have your master bedroom with walk in closet that leads to your master ensuite. Three more bedrooms and another full bath plus an extra play room space for the kids. Washer and dryer upstairs with the bedrooms for easy access. Downstairs is another 2 bedrooms and 1 bathroom, with a media room and loads of storage space! Legal suite is 2 bed 2 bath and is stacked in the corner of the home with its own separate entrance and fully self-contained, perfect for noise separation. The suite is three floors, with the second bedroom and bath in the basement that you could use as a rec room if a second bedroom is not needed. Seller would look at taking trades as partial payment. |
| address: | 9827 TURNER Street |
| postal code: | V0H1Z5 |
| city: | Summerland |
| latitude: | 49.60843200 |
| longitude: | -119.68054000 |
| constructed_date: | 2022 |
| type: | House |
| sub_type: | Single Family |
| size_interior: | 4319 sqft |
| size_total: | 0.15 ac|under 1 acre |
| bedrooms: | 8 |
| bathrooms: | 6 |
| heating_type: | Forced air, (Natural gas) |
| cooling_type: | Central air conditioning |
| storeys: | 3 |
| basement_type: | Full (Unfinished) |
| parking_type: | See Remarks |
| parking_space_total: | 3 |
| landscape_features: | Landscaped, Underground sprinkler |
| appliances: | Dryer - Electric, Refrigerator, Washer, Dishwasher, Microwave |
| view_type: | Mountain view |
| features: | Flat site |
| community_features: | Quiet Area |
| amenities_near_by: | Recreation, Shopping, Public Transit |